相关解读:
相关文件:
庐山市农村宅基地建房带图审批制度
庐山市农村宅基地建房带图审批制度
为进一步完善农村宅基地建房带图审批制度,根据《江西省农村村民自建房管理办法》、庐山市人民政府《关于规范农村宅基地审批和农村住房建设暂行管理办法》(庐府办字〔2023〕25号)等文件精神,制定本制度。
一、管控区域划分
自2024年1月1日起,全市实行农村宅基地建房带图审批制度,全市划分为严控区和一般控制区。
(一)严控区是指庐山风景名胜区和海会镇、白鹿镇、温泉镇集镇规划范围内,105国道和环庐山公路道路两侧200米可控范围内。
(二)一般控制区是指除严控区以外的区域。
二、房屋及围墙风格
(一)严控区建房风格应当以白墙黑瓦为主基调的中式建筑风格,按通用图集或当地已经形成的整体风貌格调建设赣北民居、地域乡土民居,体现庐山地域文化,倡导建造二层楼房。围墙倡导建造景观化的绿篱、矮墙,不得建造功能性实体围墙,围墙总高度不超过0.6米。庭院做到内外整洁有序、无乱堆乱放、无不雅构筑物。
(二)一般控制区鼓励参照严控区建造,禁止建设造型怪异、奇特或色彩过于鲜艳、突兀的建筑。围墙总高度不超过1.2米,非功能性实体围墙高度不超过0.6米。宜通透改造,因户施策,选用乡土材料,风格与主房及周边环境协调,倡导矮墙、绿篱。
(三)主房、庭院、围墙等严格按照美丽乡村标准执行。围墙不得使用原色不锈钢、铝合金等与美丽乡村不符的建材。
(四)围墙内面积总和涉及占用耕地的不超过120平方米,占用原有宅基地和村内空闲地以及利用新规划的宅基地建房不超过180平方米。不得违反庭院内土地性质要求,擅自改变土地用途。
三、前置要求
(一)选址
1.依法科学选址。农房建设选址应当符合村庄规划,科学选址。充分利用规划区内原有宅基地、空闲地和其他未利用地,禁止占用基本农田、饮用水水源保护区、天然林地、公益林地。引导村民在规划区和聚居点建房。合理避让地质灾害隐患区、山洪灾害危险区和行洪泄洪通道。
2.严禁占用水域建房。在涉湖区域建房,需严格在河道管理范围线外实施。严禁未经审批擅自填埋坑塘水面建房。
3.严禁在坡度25度以上区域审批建房,25度以下在规划区内按规定进行审批。
4.地质勘察。应尽量避开地质灾害易发区,确实不可避免的,应当依法实施地质灾害危险性评估,并按要求做好防治措施。
(二)标高
建房标高以户外道路、室外地坪及周边地层等因素综合确定。依据标高及地形设计房屋图纸,不得随意抬升或者降低标高。
(三)图审
农户审批前须提供符合要求的房屋设计图、围墙效果图等,有地下室的还须提交地下室施工方案,设计不符合要求的不予批准。新基农转用报批前提供宅基地平面图,报批后不得更改。建设二层及以上的村民自建房应选用政府免费提供的农村住房设计通用图集,或者委托具有相应资质的设计单位按当地相关规划的风貌进行设计。
(四)协议保障
建房户与承建人需签订《农房施工承包合同》,明确质量安全责任、质量保证期限等双方权利义务。
(五)原宅基地处置
坚持“一户一宅、建新拆旧”原则。农户经批准异地建房的,原宅基地应当交还农村集体经济组织;属于建新拆旧的,原地上建筑物应当自行拆除;农村集体经济组织可以按照相关程序依法依规对原宅基地及地面建筑物进行盘活利用。
(六)施工准备
整理施工场地,清理建筑垃圾,按照要求设置围挡,围挡高度不低于2.5米。
(七)污水处理
农房建设应同时配建污水处理等设施,能集中纳管处理的,应采用集中纳管处理;不能集中纳管处理的,应配套建设化粪池及污水处理池进行处理,并做到达标后排放。
(八)按图施工
图纸一经报批不得随意更改。受委托的施工单位或者建筑工匠必须按图施工,对施工全过程作业安全与质量负责。
四、举报制度
设立投诉举报电话和受理部门(由乡镇确定)。接到投诉举报后,乡镇会同村(社区)第一时间到现场调查核实,并同时倒查责任。
附件:1.农户建房告知书
2.农村在基地建房承诺书
3.农户用地建房征求四邻意见书
4.“六到场”工作记录表
5.通用图集
附件1
农户建房告知书
建房农户:
您好!
根据《江西省农村村民自建房管理办法》《庐山市关于规范农村宅基地审批和农村住房建设暂行管理办法》和《庐山市农村宅基地建房带图审批制度》等规定,现将建房规范的相关事项告知如下:
一、建房用地面积
(一)使用耕地的,3人及以下(指符合条件的建房人口,下同),不超过100平方米;4—5人,不超过110平方米;6人及以上,不超过120平方米。
(二)使用其他土地的,3人及以下,不超过120平方米;4—5人,不超过130平方米;6人及以上,不超过140平方米。
(三)两个农户以上联建的,每户统一控制在120平方米之内。
(四)农民建房建筑面积3人及以下,不超过270平方米;4—5人,不超过300平方米;6人及以上,不超过350平方米。
(五)两个农户以上联建的,每户不超过350平方米。
二、建造标准
(一)高度:房屋建筑层数应严格控制在3层以内,建筑檐口高度不得超过11米,坡屋顶总建筑高度不得超过13米。架空层层高超过2.2米(含)的按1层计算层次。特殊控制区等规划有另行要求的除外。
(二)外挑阳台:外挑算一半面积,封闭全部计算面积。
(三)围墙:严控区道路沿线一律按照要求进行退让,围墙倡导建造景观化的绿篱、矮墙,总高度不超过0.6米,不得建造功能性实体围墙。一般控制区围墙总高度不超过1.2米,非功能性实体围墙高度不超过0.6米。选用乡土材料,不得使用原色不锈钢、铝合金等与美丽乡村不符的建材。风格与主房及周边环境协调,不砌筑高墙、阻隔空间,宜通透开放、内外整洁,倡导矮墙、绿篱。庭院做到内外整洁有序,无乱堆乱放,无不雅构筑物。所有区域建筑外立面一律禁止使用条形瓷砖、马赛克等材料。
(四)标高。建房标高以户外道路、室外地坪及周边地层等因素综合确定。依据标高及地形设计房屋图纸,不得随意抬升或者降低标高。
(五)施工准备。整理施工场地,清理建筑垃圾,按照要求设置围挡。
三、带图审批
从2024年1月1日起,农民建房实行带图审批制度,农户审批时需要提供施工图、效果图(通用图集),报乡镇人民政府审批核准,不按图施工的,乡镇有权要求在建房屋停止施工并依法处置,产生的损失将由建房户自行承担。
|
序号 |
材料名称 |
材料形式 |
备注 |
|
1 |
庐山市农村宅基地和建房(规划许可)申请表 |
原件 |
|
|
2 |
农村宅基地使用承诺书 |
原件 |
|
|
3 |
建房户(家庭成员)身份证、户口本复印件,家庭人口证明材料(村委会提供) |
复印件 |
|
|
4 |
房屋设计图、平面图、立面图、剖面图、纸质版1份,电子版1份。地下室平面图及围墙效果图根据实际需要提供。 |
原件 |
|
|
5 |
公示证明材料(村及建房现场公示照片) |
原件 |
|
|
6 |
四邻意见书,包括现场签字照片(涉及相邻关系的需提供) |
原件 |
|
|
7 |
新基耕地占用税缴款收据(涉及占用耕地的) |
复印件 |
|
|
8 |
其他证明 |
原件 |
|
附件2
农村宅基地建房承诺书
本人系 村 组 村民,全家共有 人,其中,农 人、非农 人,领独生子女证 人(农/非农)。
申请建房面积 平方米,其中原基拆(翻)建 平方米/占用新基地建房 平方米。
本人郑重承诺:
1.所建房屋保证与有资质的施工单位或有资质的建筑工匠签订《农房施工承包合同》,确保安全。
2.所建房屋及围墙、地下室等所有建筑保证按图施工。
3.所建房屋遵守“六到场”制度,保证在选址、放样、砌基、结顶前、竣工验收和外立面验收,均提前报告村委会。
4.所建房屋总建筑面积控制在审批面积内,(使用耕地的小户100平方总建筑面积270平方,中户110平方总建筑面积300平方,大户120平方总建筑面积350平方;使用其他土地的小户120平方总建筑面积270平方,中户130平方总建筑面积300平方,大户140总建筑面积350平方)房屋檐口控制在11米内,总高度控制在13米内。不超面积、不超高、不超层数。
5.整个庭院面积(含房屋面积)按照无违建标准要求,地下面积与主房审批面积相一致,位置与主房重合,深度不超过2.8 米。不违反庭院内土地性质要求,擅自改变土地用途。靠近公共道路一侧的围墙按照严控区0.6 米,一般控制区1.2米的高度,建造通透式围墙,不使用原色不锈钢、铝合金等与美丽乡村不符的建材。
6.所建房屋在放样前拆除所有旧房并设置好围挡,做好污水处理。
7.所建房屋总面积验收合格后,保证不拼接。
8.所建房屋不随意开挖破坏生态保护治理要求。
9.所建房屋无土地权属纠纷。
10.所建房屋建筑垃圾做到日产日清,保障建房区域卫生清洁干净。
以上承诺我已阅读并知晓,如违反承诺,一切后果由承诺人承担,自愿且配合接受镇村相关部门整改。
承诺人(户主)
年 月 日
附件3
农户用地建房征求四邻意见书
拟新建、改扩建、原址翻建 层住房, 建房户经和东邻 户、西邻 户、南邻 户、 北邻 户共同协商,对可能影响的通风、采光、出行等基本功能已征求相邻权利人意见(若涉及相关补偿事宜另签订补偿协议附后),同意规划房屋 层,座朝 向,按批准面积和规定进行建设。
申请建房户主签字:
相邻权利人签字:
时间 : 年 月 日
附件4
“六到场”工作记录表
镇 村(社区) 村(小组) 户 批准文号: 批准面积: M2
|
选址到场:(四至、地类、是否符合两规、是否在地质灾害易发区或场坡建房)农户签字: 镇、村(社区)踏勘人员签名:年月日 |
|
放样到场:(旧房是否拆除或腾空、是否按要求放样) 农户签字: 镇、村(社区)踏勘人员签名:年月日 |
|
砌基到场:(是否按放样情况砌基,是否存在超面积) 农户签字: 镇、村(社区)踏勘人员签名:年月日 |
|
结顶前到场:(是否超高) 农户签字: 镇、村(社区)踏勘人员签名:年月日 |
|
竣工验收到场:(是否符合批准情况) 农户签字: 镇、村(社区)踏勘人员签名:年月日 |
|
外立面验收到场:(外立面风格是否与图纸一致) 农户签字: 镇、村(社区)踏勘人员签名:年月日 |
注:其他有关部门按照规定职责,负责农村住房建设的有关管理工作。
附件5
通用图集
一、主房设计参考图
(一)小宅基地类型(占地面积110㎡以内)
①户型编号:A-100-01
|
方案一
|
|
|
|
|
|
②户型编号:A-110-01
|
方案二
2.建筑面积:188.49m²(350m²) 3.建筑层数:2层 4.檐口高度:7.40m(11m) 5.屋脊高度:9.30m(13m) 6.建筑风格:新中式 |
|
|
|
|
|
③户型编号:A-110-02
|
1.宅基地面积:108.90m²(110m²) 2.建筑面积:195.99m²(350m²) 3.建筑层数:2层 4.建筑高度:8.40m(13m) 5.建筑风格:现代中式 |
|
|
|
|
|
(二)中宅基地类型(占地面积110-120㎡之间)
④户型编号:B-120-01
|
方案四
2.建筑面积:164.16m²(350m²) 3.建筑层数:2层 4.檐口高度:7.40m(11m) 5.屋脊高度:9.30m(13m) 6.建筑风格:地域民居 |
|
|
|
|
|
⑤户型编号:B-120-02
|
1.宅基地面积:117.52m²(120m²) 2.建筑面积:299.10m²(350m²) 3.建筑层数:3层 4.檐口高度:10.40m(11m) 5.屋脊高度:12.30m(13m) 6.建筑风格:新中式 |
|
|
| |
|
|
|
|
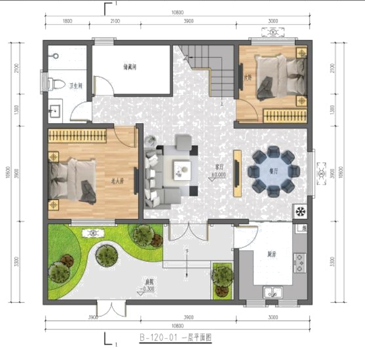
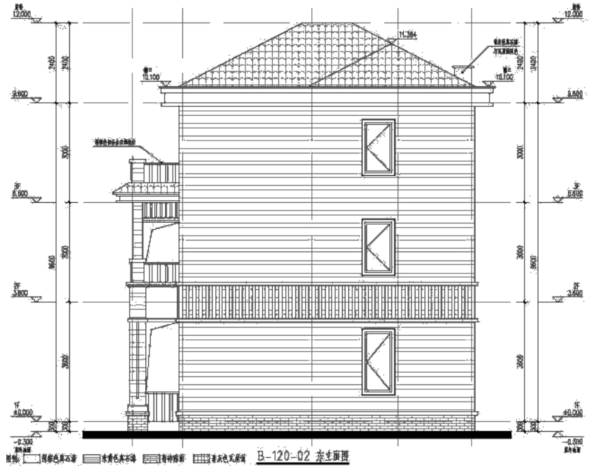
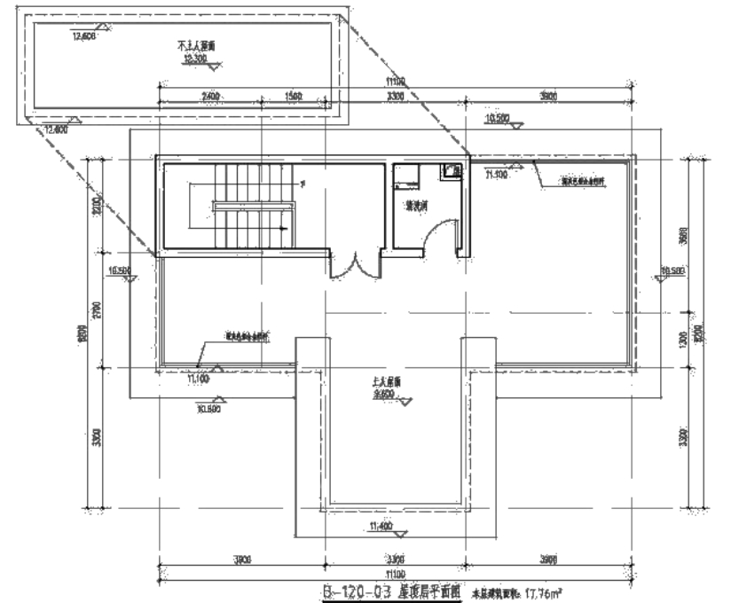
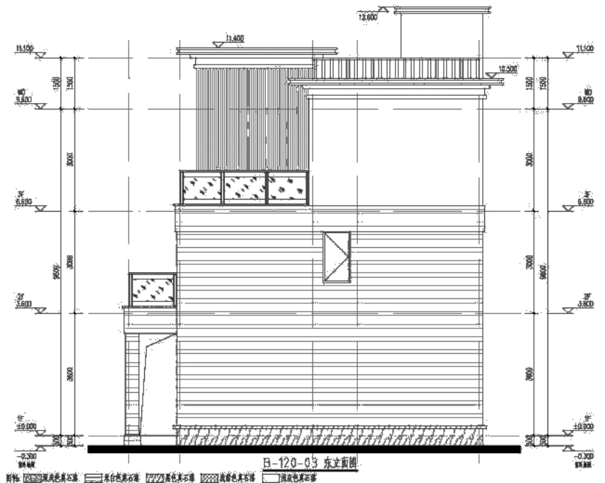
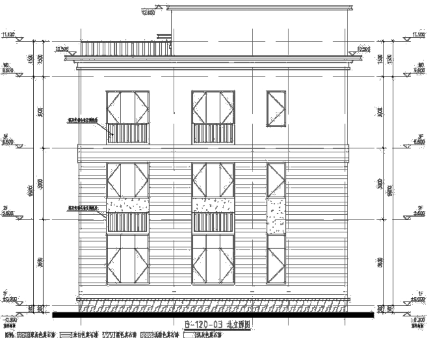
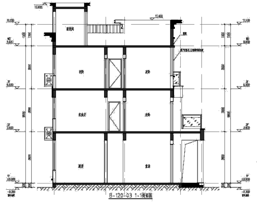
⑥户型编号:B-120-03
|
1.宅基地面积:118.65m²(120m²) 2.建筑面积:293.73m²(350m²) 3.建筑层数:3层 4.建筑高度:11.70m(13m) 5.建筑风格:现代中式 |
|
|
|
|
||
|
|
||
|
| ||
(三)大宅基地类型(占地面积120-140㎡之间)
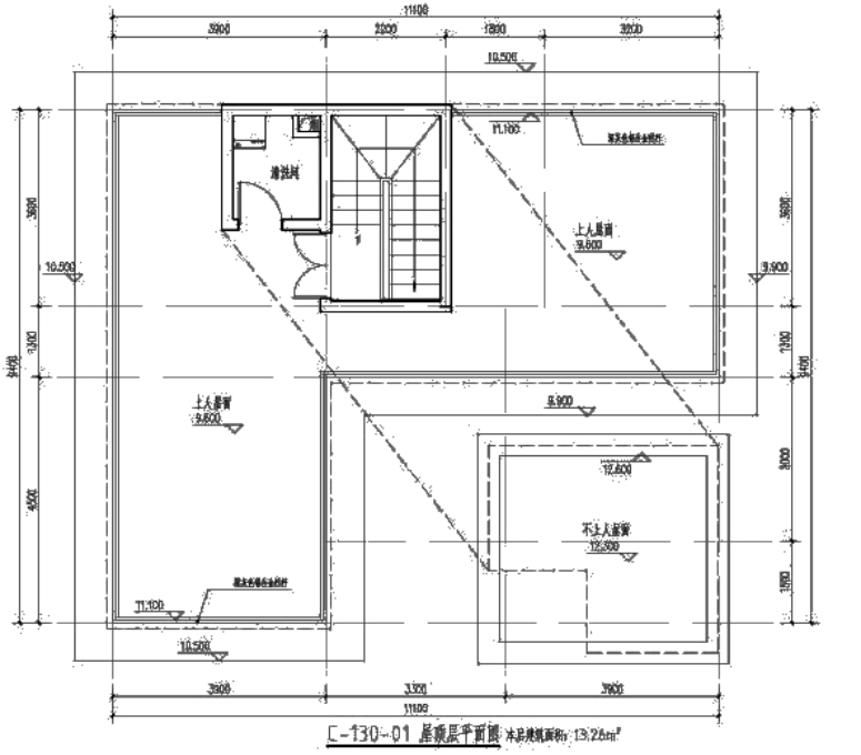
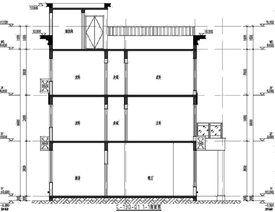
⑦户型编号:C-130-01
|
1.宅基地面积:128.82m²(120m²) 2.建筑面积:301.80m²(350m²) 3.建筑层数:3层 4.建筑高度:11.40m(13m) 5.建筑风格:现代中式 |
|
|
|
|
||
|
|
||
|
| ||
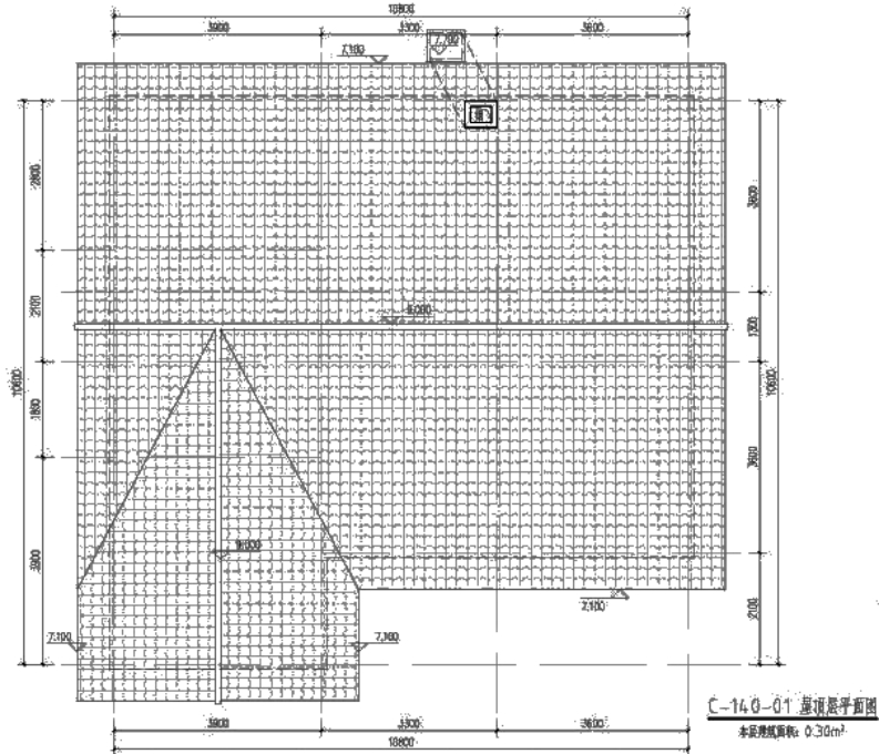
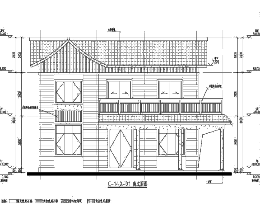
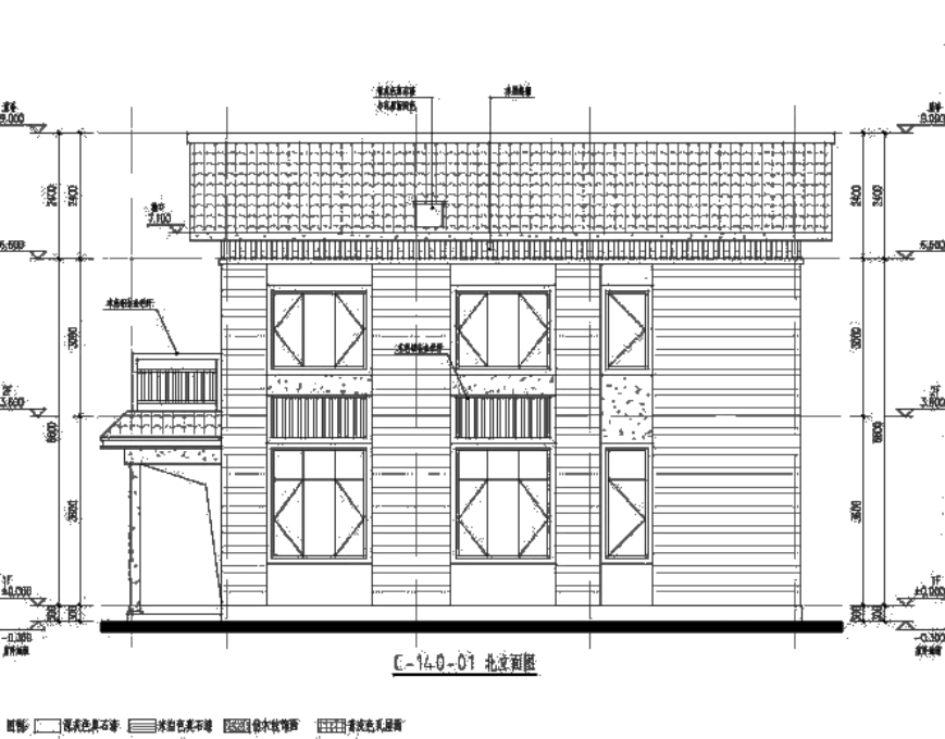
⑧户型编号:C-140-01
|
方案八
2.建筑面积:242.85m²(350m²) 3.建筑层数:2层 4.檐口高度:7.40m(11m) 5.屋脊高度:9.30m(13m) 6.建筑风格:地域民居 |
|
|
|
|
|
⑨户型编号:C-140-02
|
方案九
2.建筑面积:343.80m²(350m²) 3.建筑层数:3层 4.檐口高度:10.40m(11m) 5.屋脊高度:12.30m(13m) 6.建筑风格:新中式 |
|
|
|
|
||
|
|
||
|
| ||
(四)联排建设类型
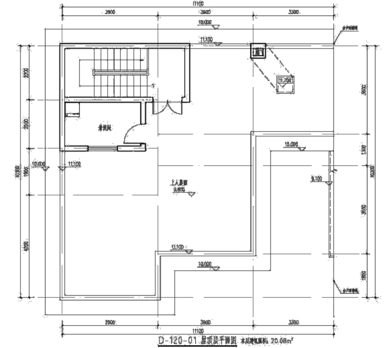
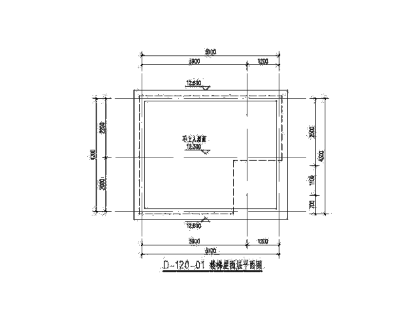
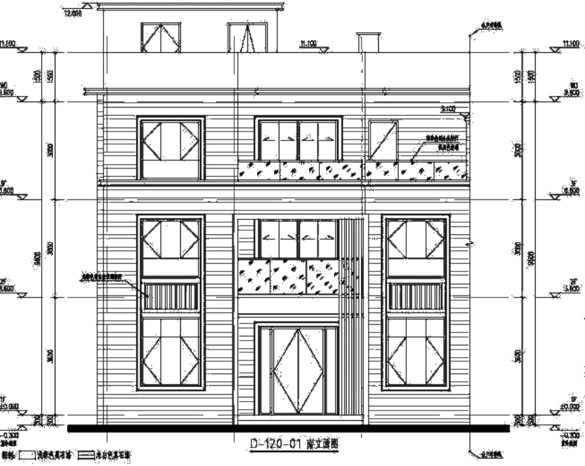
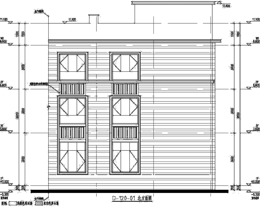
⑩户型编号:D-120-01
|
1.宅基地面积:119.69m²(120m²) 2.建筑面积:332.90m²(350m²) 3.建筑层数:3层 4.建筑高度:11.40m(13m) 5.建筑风格:现代中式 |
|
|
|
|
||
|
|
||
|
| ||
二、围墙设计参考图
方案一

方案二

方案三

方案四

方案五

方案六

方案七

方案八

方案九

方案十
庐山市人民政府办公室 2024年1月1日印发
相关附件:
扫一扫在手机打开当前页
宅基地面积:99.84m²(100m²)




























































































